京都マンション探しNET > 物件詳細

![]()
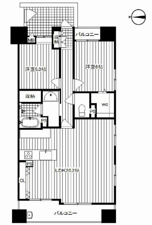
| 所在地 | 京都市下京区吉水町342 | ||
|---|---|---|---|
| 交通 | 阪急京都本線 大宮駅 6分 | 専有面積 | 70.27u | バルコニー面積 | 10.78u |
| 間取り | 2LDK | 築年月 | 2006年02月 |
| 建物階建/所在階 | 地上14階 / 11階部分 | 総戸数 | 60戸 |
私が担当致します

河島 慎二
![]()
![]()
| バルコニー向き | 西 | ペット可否 | 可 |
|---|---|---|---|
| 現状 | 空家 | 引渡時期 | 相談 |
| 管理費 | 9,980円 | 修繕積立金 | 11,950円 |
| 小学校 | 洛央小学校 | 中学校 | 下京中学校 |
| 駐車場 | 取引態様 | 仲介 | |
| 管理人 | 日勤 | 建物構造 | RC |
| 分譲会社 | イー・スペース | ||
| 施工会社 | 大林組 | ||
| 管理会社 | イー・スペース | ||
| 備考 | 地下鉄四条駅徒歩約10分 駐車場月額24000円ペット飼育可 | ||
![]()
周辺地図
![]()
![]()
京都マンション探しNET > 物件詳細